Charnière COMPACT BLUMOTION 38N 105°

Charnière COMPACT BLUMOTION 38N 105°

La charnière COMPACT BLUMOTION a été spécialement conçue pour les armoires à cadre. La fonction de fermeture douce est intégrée directement dans le boîtier de la charnière, et peut être désactivée pour de portes petites ou légères. Avec COMPACT BLUMOTION, les portes ferment toujours silencieusement.

La fonction BLUMOTION peut facilement être désactivée sur une charnière, permettant aux portes petites ou légères de fermer avec la même qualité de mouvement élevée.

AVANTAGES ET BÉNÉFICES

– Technologie de fermeture en douceur BLUMOTION intégrée dans le boîtier de la charnière
– Interrupteur de désactivation pour les portes petites ou légères
– Caractéristique de sécurité en cas de surcharge
– Charnière enveloppante en une pièce
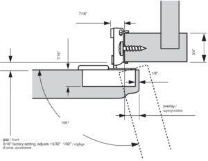
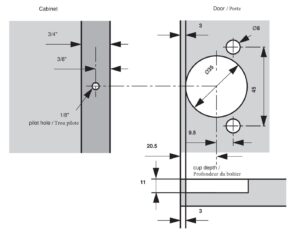
– Profondeur du boîtier 11 mm (7/16 po)

SPÉCIFICATIONS TECHNIQUES

Type de charnière: COMPACT BLUMOTION
Marque: Blum
Fini: Nickel
Diamètre de perçage: 1 3/8 po (35mm)
Matériau: Acier
Type d’application: Porte standard
Type de caisson: Avec cadre
Positionnement de la porte: Demi-recouvrement
Épaisseur de caisson: Min. 5/8 po
Épaisseur de porte: 5/8 po
Mécanisme: Fermeture amortie
Profondeur de perçage: 7/16 po*
Angle d’ouverture de la charnière: +105°
SKU du produit N/D Catégories , Marque :

Document connexes

Fiche technique
Dessin technique
Dessin technique (1)
Dessin technique (2)

$9.95

Produits connexes